7 Craig Dr Kincardine ON N2Z 2X6
Toggle Navigation
Images
Floor Plans
Map
7 Craig Dr
Kincardine ON N2Z 2X6
Scroll to Content
Images
Slideshow
Photo Grid
Hide
Previous
Next
Show more
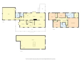
Floor Plans
Slideshow
Photo Grid
Hide
Previous
Next